Nordic Lofoten
The Nordic Lofoten is a residence that exemplifies the fusion of minimalist design and natural beauty, catering to a luxurious yet sustainable lifestyle. With interiors boasting natural light and materials, expansive living areas, and serene private spaces, it stands as a testament to over thirty years of architectural expertise. Embracing eco-friendly features like solar panels and energy-efficient insulation, the Nordic Lofoten offers an elegant, environmentally conscious home that invites you to live in harmony with the surrounding landscape.


Nordic Lofoten: Where Elegance Meets Tranquility
BWF Nordic Collection
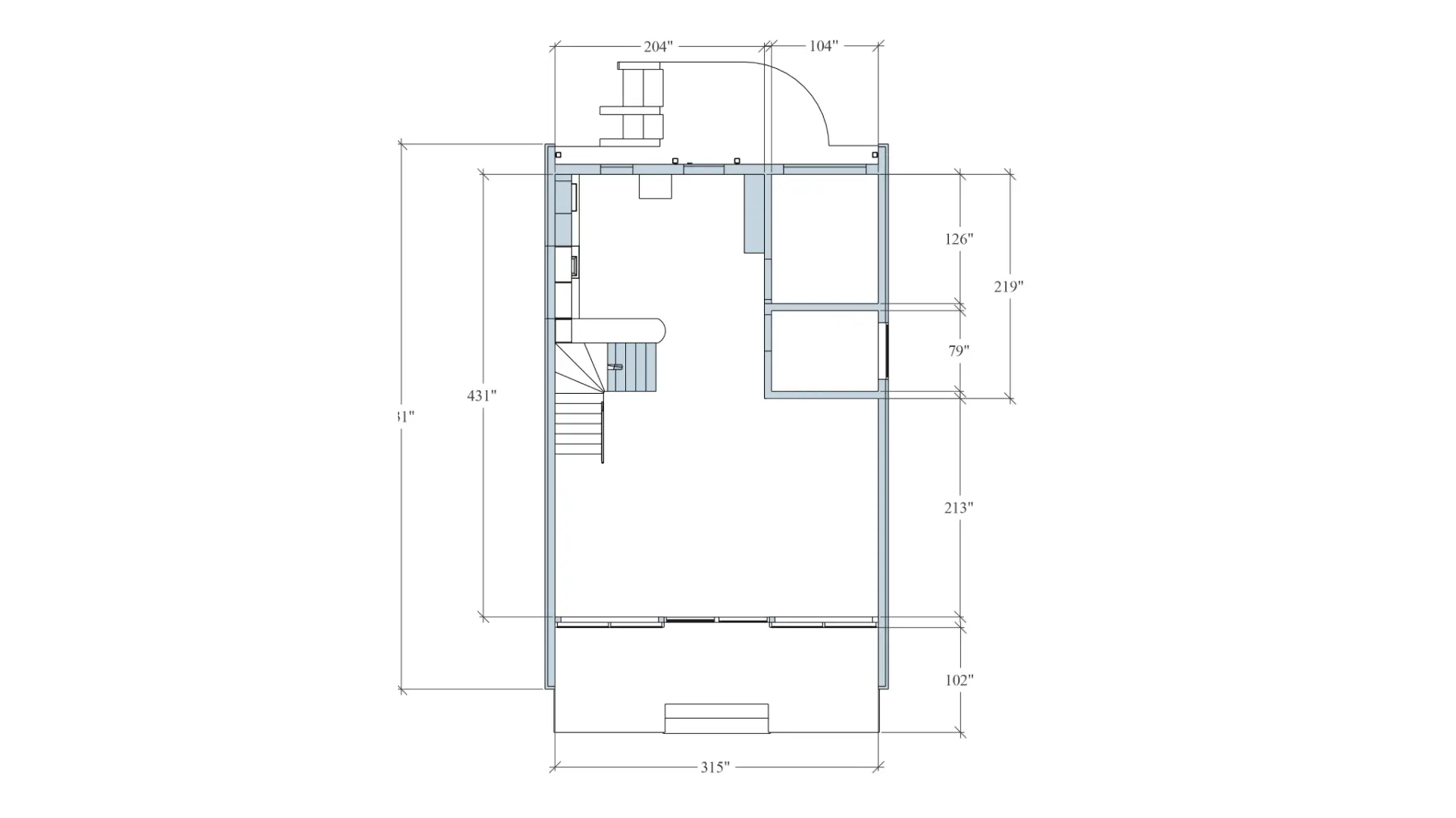
Specifications
Nestled in the embrace of nature's masterpiece, the Nordic Lofoten is a paradigm of architectural splendor and serene living. With over three decades of refined craftsmanship, we present a home that is both a sanctuary and a statement.
Design Philosophy
Inspired by the Lofoten archipelago, our project interweaves the raw beauty of its surroundings with the comforts of modern living. The design is an homage to space, simplicity, and sustainability, showcasing minimalist aesthetics that allow the wilderness to take center stage.
Interiors
Step inside to a world of understated luxury. Expansive living areas bathed in natural light offer uninterrupted views of the idyllic outdoors. The interiors feature a harmonious blend of natural materials such as wood and stone, which echo the external landscape. Custom-built shelves, elegant fixtures, and a state-of-the-art kitchen ensure that every need is catered to with sophistication.
Exteriors
The exterior is a bold interplay of form and function, with its clean lines and sustainable materials chosen for durability and low environmental impact. A dynamic façade, punctuated with thoughtfully placed windows, captures the essence of Nordic design while providing panoramic views and natural warmth.
Living Spaces
The Lofoten’s heart is its open-concept living area that extends seamlessly to an inviting outdoor terrace, blurring the lines between indoor comfort and outdoor exhilaration. Bedrooms are serene retreats, promising privacy and comfort. The spa-like bathrooms serve as personal havens for relaxation and rejuvenation.
Sustainability
At the core of the Nordic Lofoten is a commitment to sustainability. Solar panels, rainwater harvesting, and energy-efficient insulation are integrated to minimize the ecological footprint while enhancing functionality and comfort.
Have a dream project in mind?
Contact Baltic Wood Factory to discuss

Please allow 48 hours for our support team to answer any of your questions





